2º, 3º e 4º PAVIMENTO
Composto por 1 hall de acesso aos apartamentos com escada, 1 elevador, 1 circulação de acesso aos apartamentos, e 1 lixeira.
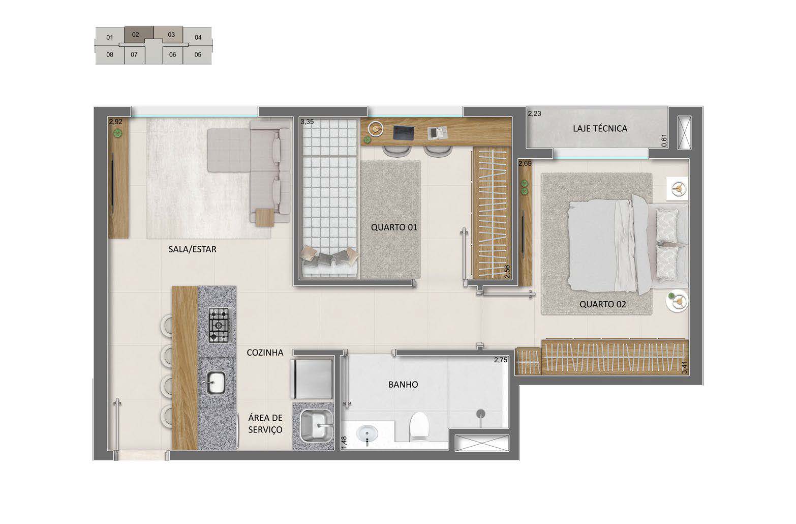
A área privativa contém 8 apartamentos por andar, sendo 4 unidades de canto (finais 1, 4, 5 e 8) e 4 unidades de meio (finais 2 e 3, 6 e 7).
• Os apartamentos de canto de final 1, 4, 5 e 8, possuem 1 sala de estar/jantar, 2 quartos sendo 1 suíte, 1 cozinha/área de serviço, 1 banheiro, e laje técnica para instalação de ar condicionado.
• Os apartamentos de meio de final 2 e 3, possuem 1 sala de estar/jantar, 2 quartos, 1 cozinha/área de serviço, 1 banheiro, e laje técnica para instalação de ar condicionado.
• Os apartamentos de meio de final 6 e 7, possuem 1 sala de estar/jantar, 1 suíte com banheiro, 1 cozinha/área de serviço, e laje técnica para instalação de ar-condicionado.